172

Complete the Form to Proceed with Download

scan-whatsapp.webp

you will hear from us shortly

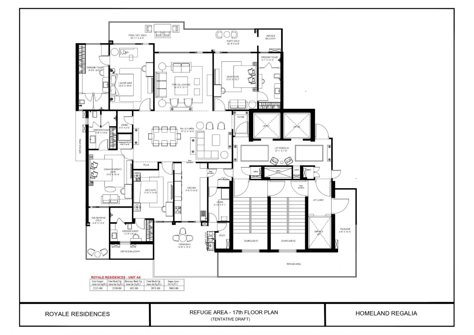
Unit No.

# 172

Floor

17

BEdroom

172

Unit Area

2339